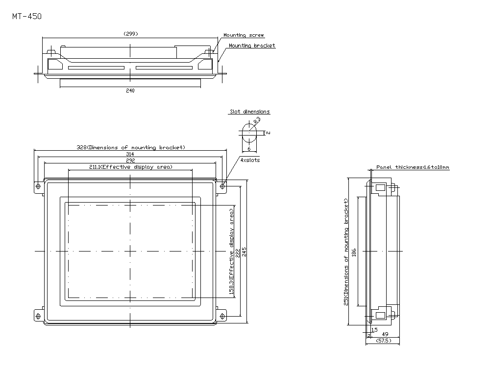
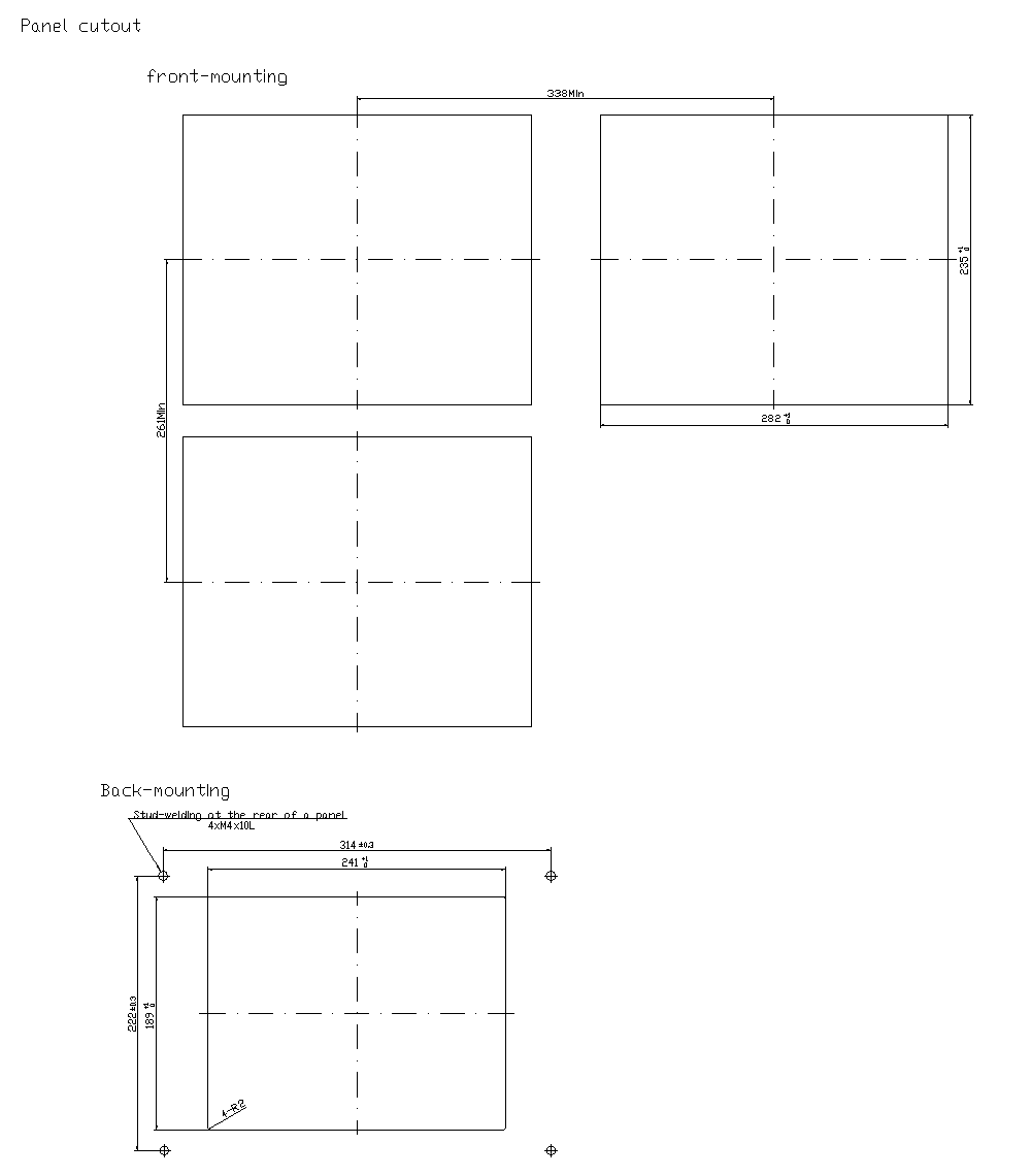
外形寸法図

  • 文字が読みにくい場合は、CADもしくはマニュアルをご確認ください。
MT-450 Dimension
MT-450 _02 Dimension